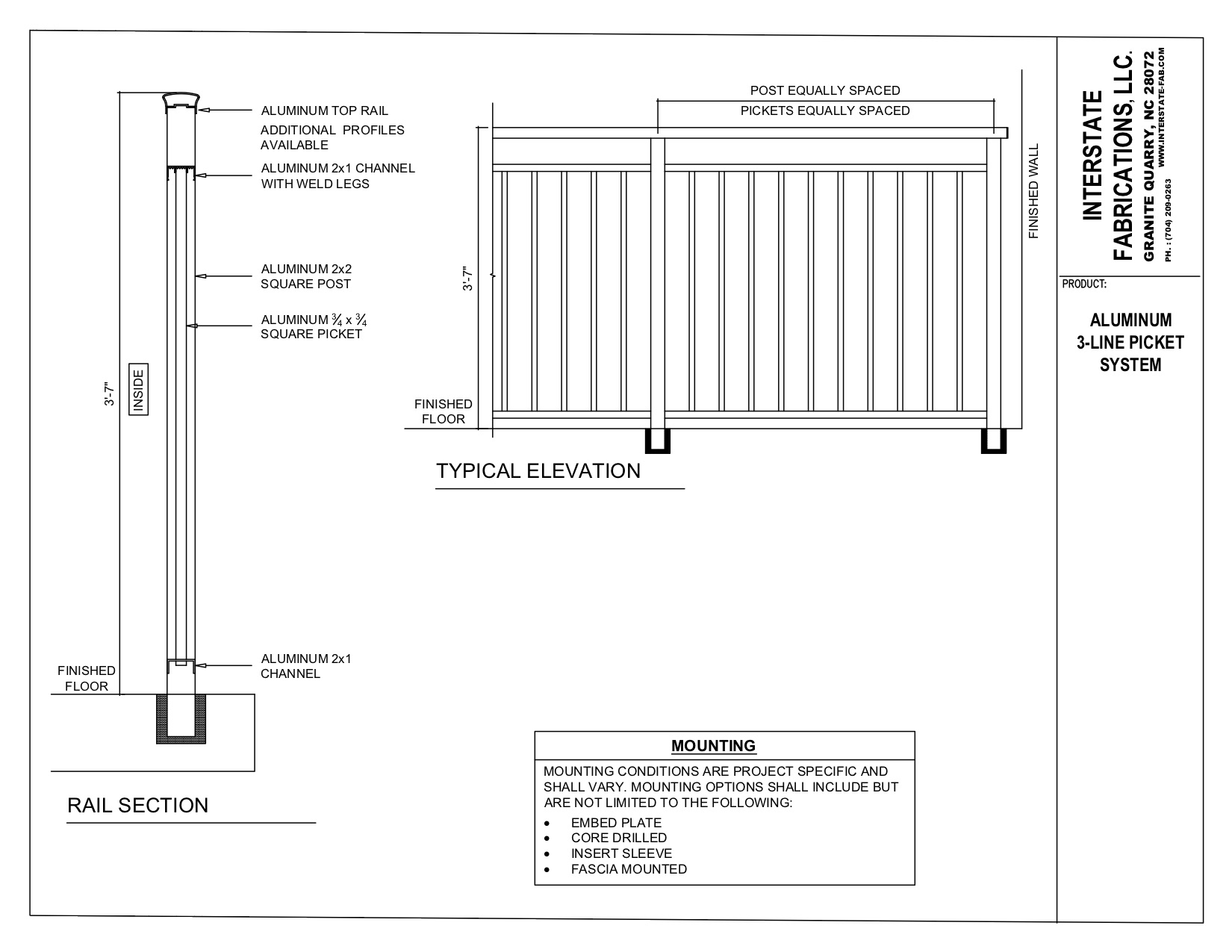
Our standard aluminum picket railing is perfect for your personal yard or porch. We also offer steel pipe railing. VARIATIONS:2-line picket3-line picketHorizontal picket